
Hot Products
產品中心



說明
Z673TC-10C陶瓷刀閘閥、耐磨陶瓷刀型閘閥又名耐磨陶瓷刀閘閥,陶瓷刀型閘閥,采用陶瓷密封面,可提升的閘板密封面,可刮除密封面上的粘著物,自動清除雜物。閘板,閥座密封面材料采用結構陶瓷制造,耐磨損,耐腐蝕,抗高溫蠕變和熱震性,使用壽命長。
該閥廣泛適用于灰渣,泥渣,煤漿,礦漿,污水等固體,液固,氣固二相介質輸送系統,尤其適用于火力發電廠石子煤系統。
氣動陶瓷刀閘閥、耐磨陶瓷刀型閘閥產品)特點: 陶瓷刀型閘閥適用于發電廠干灰系統,倉泵出料輸送,也可適用于礦山,造紙,化工等各類有磨損的干粉塵,水,蒸汽等介質在管道上作啟閉之用。公稱壓力1.0MPa,適用溫度250。 陶瓷刀閘閥參照Armstrong閥門技術,關閉后任何方向全部密封。閥體閥蓋采用WCB鑄鋼件及無縫鋼管焊接。閥板與閥蓋間密合面采用熱噴涂硬質耐磨材料,表面光滑。填料采用碳素纖維盤根,或V型密封件。本閥密封性能好,耐磨性強,啟動負荷小,卡灰及積灰現象少,使用壽命長
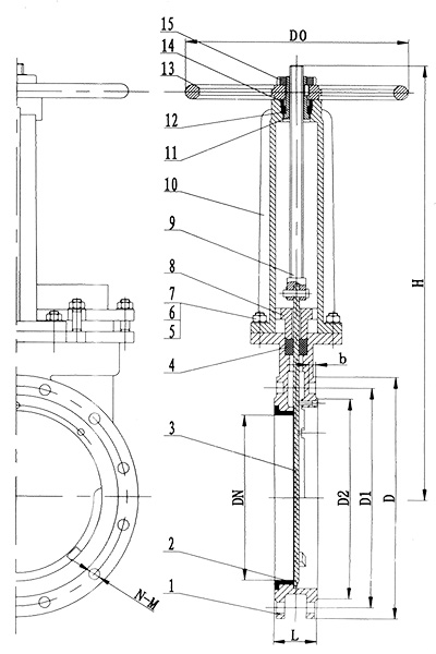
耐磨陶瓷刀形閘閥主要性能規范
1.密封面材料:結構陶瓷或超硬表面合金材料二種。
2.用煤渣,灰渣等氣,固混合介質,閘板,閥座和流道部位采用了結構陶瓷材料制造,耐磨損,長壽命。
3..密封性能優越,并可進行密封棉修得。
